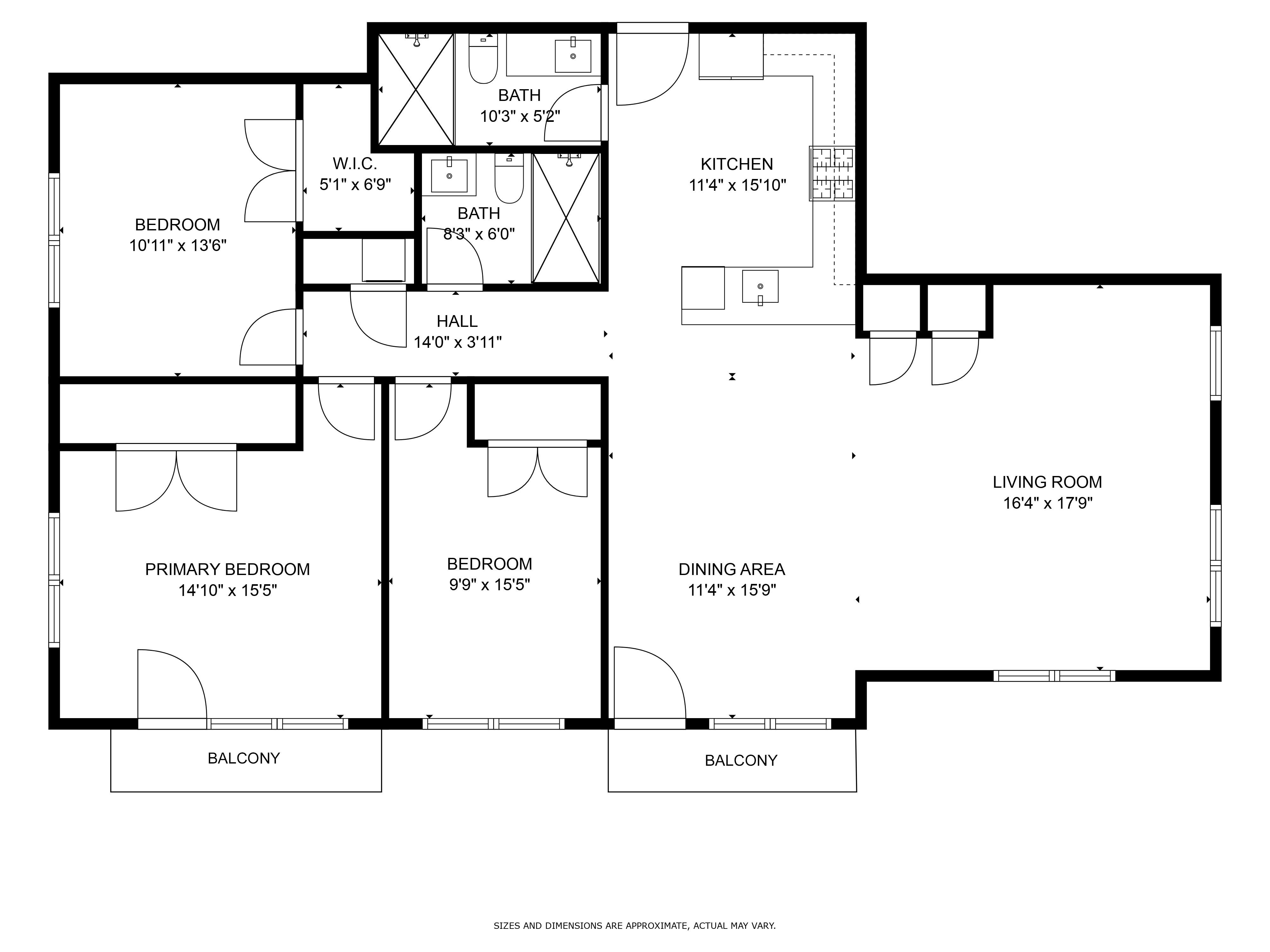
Welcome to 101 Heath Street #301 – a beautifully maintained, owner-occupied corner condo nestled in the heart of Mission Hill. This modern spacious 3 bed, 2 bath home wraps the southwest corner of the building, offering incredible natural light and golden afternoon sun through oversized Marvin Infinity windows. Enjoy thoughtfully designed open-concept living space perfect for entertaining or unwinding in style. Unit 301 is the only residence on its floor without any shared walls – a rare city find offering both privacy and community.
Key Features:
Sleek two-tone cabinet design with matte black lowers and glossy white uppers
Samsung stainless steel appliance package
Quartz countertops
The custom-tiled bathrooms with heated floors
Generous sized bedrooms offer custom closet systems
Two private balconies
1 heated garage parking space
Temperature-controlled storage unit
In-unit laundry
Elevator access



























